
97㎡奶油風:這個家像一塊蓬松的舒芙蕾

本期要為大家分享一套97方奶油風的案例。
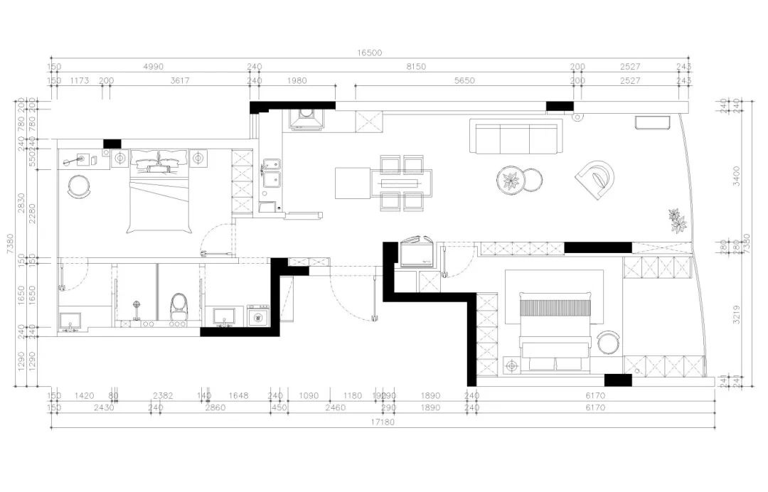
全屋使用淺潤的奶油色,營造靜謐而溫馨的居家氛圍。LDK一體化設計打破了區域界限,使客餐廚形成通透的視覺聯動,搭配“隱形式”儲物系統,在滿足一家人收納需求的同時,維系了空間的簡約美。 ▲平面方案 家屋內每一處細節均依據生活動線及功能需求精心考量,讓設計之美得以從表層的視覺愉悅,一直深入到日常使用的舒適與便捷。 玄關利用一側矮柜做鞋物收納,再輔以整面洞洞板,增添掛放物品的靈活性。 鞋柜對側設計了朦朧感的壓花玻璃作為輕隔斷,起到一定遮擋作用,同時保有光影穿透性,搭配端景臺來提升入戶的儀式感。 客廳打通陽臺,視野明亮,墻頂地皆是統一的淺色,憑借色彩的延展性,進一步放大空間尺度。 我們選配經典的奶油風云朵沙發和茶幾,柔和的曲線語言構筑起溫暖而有療愈感的場域。沙發背景墻面運用了斯卡帕疊級手法,立體疊加的線條節奏,為簡約空間注入更多藝術格調。 傳統電視墻部分我們做了儲物柜,嵌入式玻璃柜門搭配底部挑空設計,不做滿的形式為空間保留了通透質地。頂面預埋投影幕布凹槽,確保設備隱匿時的極簡觀感。 沙發背景墻側面還巧妙融入了白色小方磚拼貼裝飾,與細膩奶油色墻面構成趣味反差,搭配一幅隨性的落地畫,空間自有視覺錨點又不顯刻意,讓歸家時刻自然落入到溫柔閑適的氣場。 開放式餐廚與客廳一體,形成通透性的居家場域。島臺+餐桌塑造高效洄游動線,嵌入式家電與定制櫥柜無縫銜接,讓整個場景干凈而利落。 奶油色的櫥柜與全屋風格相契合,搭配嵌入式隱形拉手,消弭了所有視覺冗余。同時烹飪跟備餐、就餐的動線貼近,也讓下廚做飯變得無比高效。 從公區通往臥室的走廊接續了純凈色彩,在視覺上形成溫柔的引導。 主臥延續了全屋簡潔溫馨的基調,頂面用弧形線條柔化輪廓,瑩潤的燈光為空間附著一層更深的暖調,蘊生寧靜愜意之感。通頂衣柜結合開放格,搭配兩組陽臺柜,充分滿足主人的儲物需求。 次臥則以低飽和度的抹茶綠為主色調,背景墻面留白,營造靜謐又有安全感的睡臥環境。 P.I. 項目信息 項目名稱:新中宇維薩 設計風格:奶油風 項目類型:兩室兩廳 項目地點:中國·杭州 項目面積:97㎡ 項目服務:設計·施工·硬裝·軟裝 全案設計 設計單位:浙江南鴻裝飾 施工單位:浙江南鴻裝飾














免費
免費申請戶型規劃
專屬設計師免費1對1全程服務
已經有3787人申請
24小時免費咨詢電話
400-8800-618
你家預算
108080元